Zweifamilienhäuser mit Tiefgarage in Weßling
Neubau von 2 Zweifamilienhäuser mit Tiefgarage in Weßling
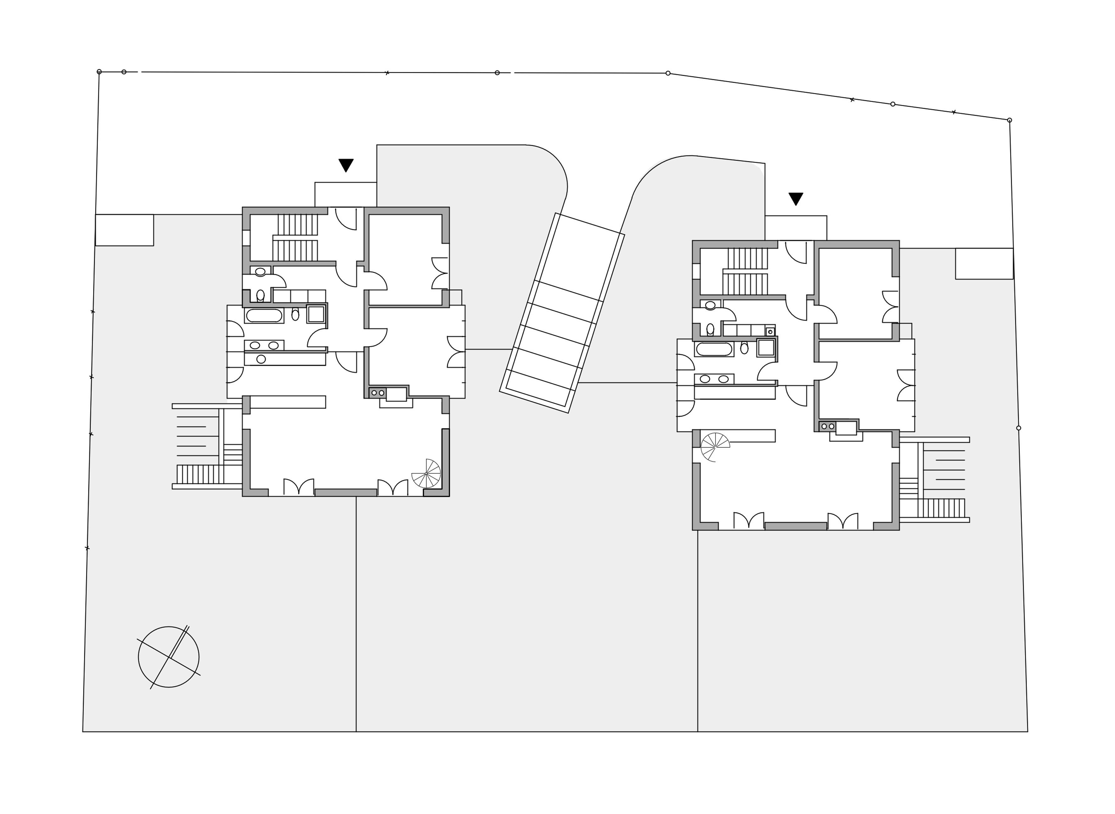
Nach den Vorgaben eines Bebauungsplanes passen sich die beiden Wohnhäuser mit einem zeitgemäßen Erscheinungsbild in Form und Material der ländlichen Umgebung an. Durch Anordnung einer Tiefgarage zwischen den Gebäuden sind an der Oberfläche großzügige grüne Freiflächen für die Bewohner nutzbar.
- Standort
- Weßling
- Auftraggeber
- privat
- Bauvolumen
Wohnfläche je Haus : 220 m2
- Leistungen
- Lph. 1 - 9





