Beratungsstelle Münchner Insel im U-Bahnhof Marienplatz München
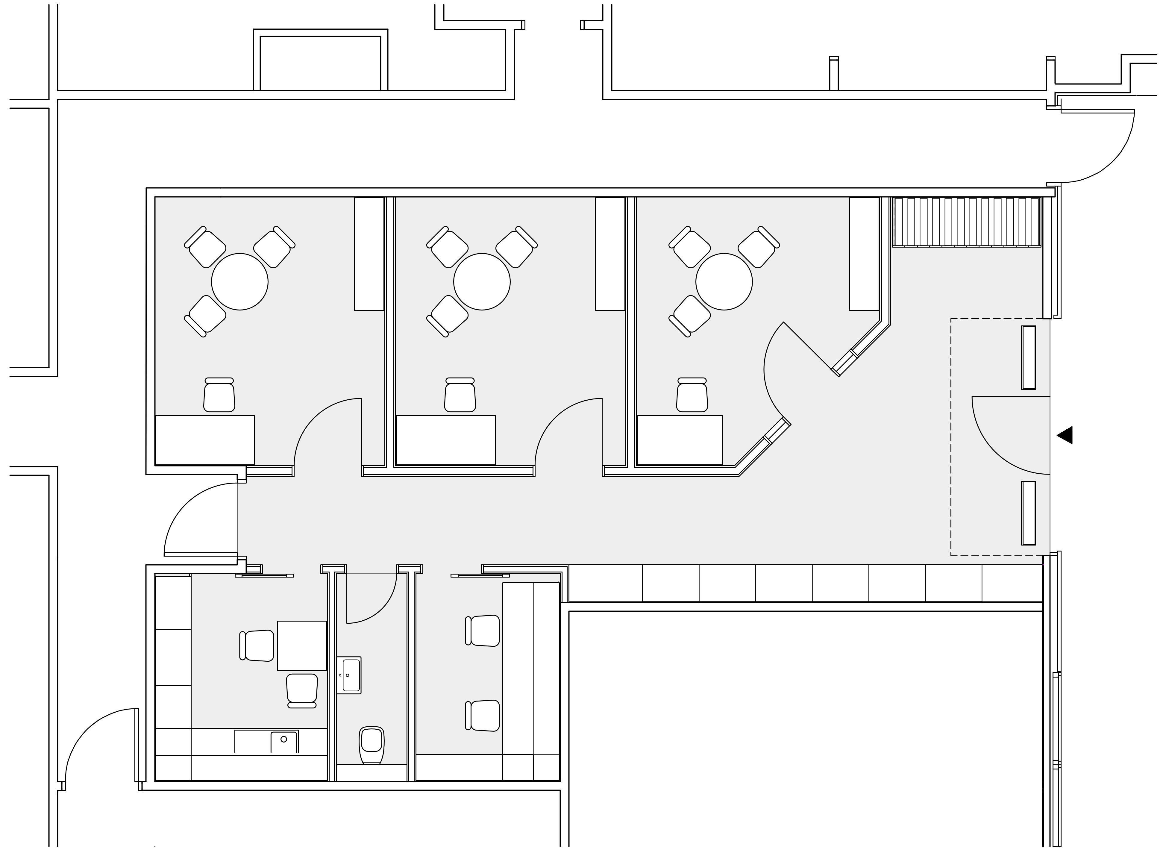
Im Zuge der Neugestaltung des Untergeschosses im U-Bahnhof Marienplatz wurde die Beratungsstelle Münchner Insel, die dort seit 1972 untergebracht ist, in neuen Räumen eingerichtet. Die Münchner Insel ist eine Krisen- und Lebensberatungsstelle der evangelischen und katholischen Kirche und bietet als ruhige "Insel" im lärmenden und hektischen Treiben der Stadt den Ratsuchenden Schutz, Informationen und Hilfe. Zwei leuchtende Stelen hinter der transparenten Fassade schirmen den Innenraum nach außen ab und informieren über Aufgaben, Öffnungszeiten und Aktivitäten. In drei wohnlich eingerichteten Beratungszimmern werden die Klienten in einer angenehmen und ruhigen Atmosphäre beraten.
- Standort
- München
- Auftraggeber
- Erzbischöfliches Ordinariat München und Freising
- Leistungen
- Lph. 1 - 8





